0
0
Все представленные в каталоге модели станков и оборудования являются нашими разработками и производятся исключительно ПОД ТОРГОВОЙ МАРКОЙ EVOLUTIONER™ 

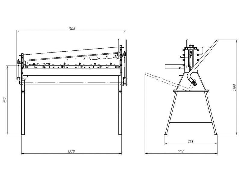
Ручная гильотина для профнастила Н8

Отзывы:
(2)

Вес: 141кг
Размер (ДхШхВ): 170см x 110см x 70см
150 000.00 грн.
Нашли дешевле?
Купить в один клик
Введите номер телефона и мы перезвоним
  • Обзор товара
  • Характеристики
  • Видео
  • Отзывов (2)
  • Вопросы (0)

Предварительный прижим металла

Гильотина ручная для профнастила предназначена для реза профлиста с толщиной металла до 1мм.  Для обеспечения высокого качества реза  непосредственно перед рубкой  металла гильотиной производится предварительный зажим листа, что предотвращает  его смещение во время реза.  Погрешность при резе минимальна благодаря наличию задних упоров на гильотине. В процессе реза лист упирается в упор, который не дает ему смещаться и соответственно размер остается одинаковым при каждом резе. Этот способ обеспечивает более высокую точность реза  чем при использовании меток.  Ножи на данной ручной гильотине изготовлены из  инструментальной стали с последующей ее закалкой и шлифовкой. 

В основном гильотинные ножницы используются для реза листового металла из плоской заготовки, либо рулона. Но иногда в процессе работы нашим заказчикам требуется распукать на полосы листы нестандартной конфигурации, в том числе и профнастил. Для этого инженерами нашего предприятия была разработана ручная гильотина для профнастила (гильотинные ножницы для профнастила). Ее отличие от обычной ручной гильотины заключается в наличии режущих ножей нестандартной формы. Именно благодаря этому возможен рез не плоского листа, а уже прокатанного профнастила на полосы требуемой величины.

Купить гильотину можно позвонив нашим менеджерам или через сайт (с помощью кнопки БЫСТРЫЙ ЗАКАЗ).

Комплект поставки станка (стандартная комплектация)

  • Гильотина ручная
  • Приемный стол с упорами
Под заказ возможно изготовления гильотинных ножниц длиной 1м, 1.27м, 1.5м.
Характеристики
Материал
Ширина материала (мм) 1270
Толщина материала (мм) 1
Видео
Отзывов (2)
Арсений
Арсений
09.02.2020
Отличная ручная гильотина для профлиста. До покупки пользовали болгарку, но ржавеет место отреза очень быстро. С этим станком проблема ушла, покрытие не нарушается. Рекомендую данную ручную гильотину для роспуска профнастила!
Ответ администратора
Спасибо за отзыв! Рады что вам понравилось наше оборудование.
Михалыч
Михалыч
23.04.2017
Для резки профнастила на объекте лучше не придумаешь.
Я сказал!!!
Вопросы (0)

Нет вопросов о данном товаре, станьте первым и задайте свой вопрос.

Вы смотрели
2
150 000.00 грн.
2
80 000.00 грн.
0
45 000.00 грн.
0
55 000.00 грн.
0
120 000.00 грн.
Модули для Opencart